rozšíření stavby přidáním modulu
2022
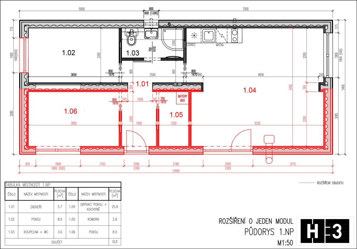
Výhodou modulární výstavby je poměrně snadná a rychlá rozšířitelnost. Z chaty 1blokki home (realizované v roce 2021) jsme přidáním jednoho modulu zhotovili domek 2blokki home s vnitřní dispozicí 3kk. Na přiložených výkresech je černě vyznačen původní stav, červená část je přístavba. Při realizaci jsme se snažili o co největší šetrnost a efektivitu. Okna a vstupní dveře z původního 1blokki jsme demontovali a umístili do přístavby. Využili jsme i veškerý fasádní modřín z té části fasády, která se v místě spoje modulů musela odstranit.
blokki
Provozní doba
pondělí - pátek
8:00 - 17:00